Descrizione
Modena Centro – Via Modonella 21
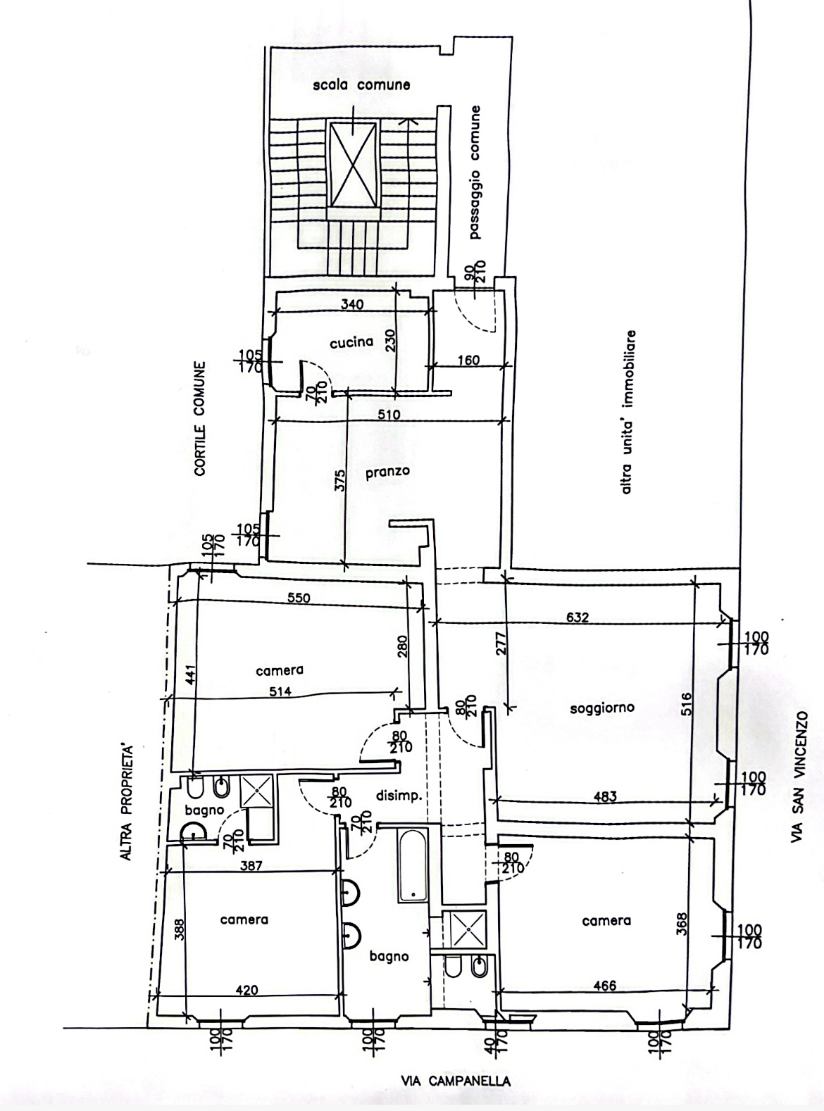
Un appartamento al terzo piano con ascensore e riscaldamento autonomo,
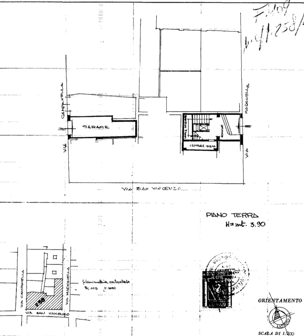
quasi 170 mq di spazi pieni di luce e di storia, con un valore aggiunto che in centro è quasi introvabile: il garage privato a piano terra di 31 mq.
Una residenza dove ogni ambiente ha il suo carattere: l’ingresso che apre su un accogliente con tinello, la cucina che profuma di casa, il salone luminoso.
Gli affacci si aprono sui tetti di via Campanella e via San Vincenzo; il disimpegno conduce alla zona notte e ospita una elegante libreria oltre all’accesso a tre grandissime camere e ai doppi servizi.
Tutto racchiuso in un contesto di grande fascino, tra piazza Roma, corso Canalgrande e via Farini.
Chi sceglie questa casa non cerca solo metri quadri, ma uno stile di vita: la comodità del centro, la riservatezza di un piano alto, la bellezza senza tempo di una residenza esclusiva. Classe G
460.000 euro
